- Du är här:
- Startsida
- Kommun och politik
Gammal nyhet
Den här nyheten publicerades och är kanske inte aktuell längre.
Publicerad klockan .
Fönsterbyte på Centrumhusets entréplan under kommande veckor
Publicerad: klockan
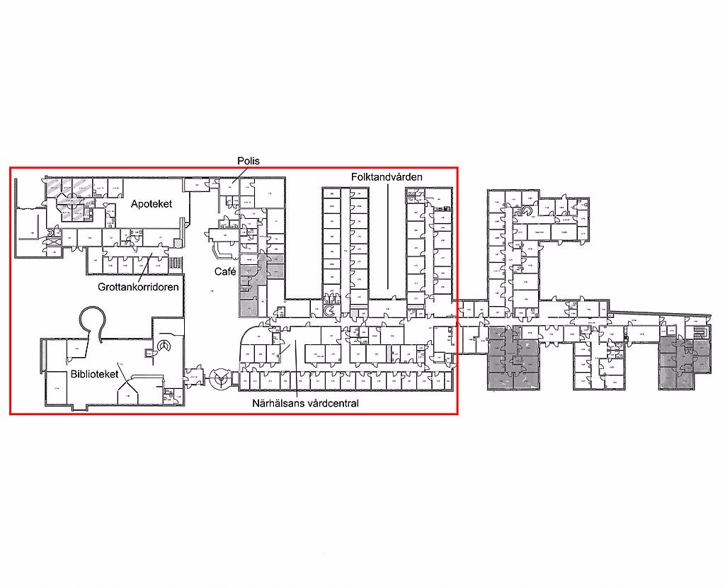
Förstora bildenCentrumhuset plan 1, de berörda delarna är rödmarkerade. Klicka på bilden för att förstora.
Nu startar ett projekt med att byta fönster i centrumhuset. Som besökare till Centrumhusets verksamheter kommer du bli berörd från slutet av november tills slutet av januari, i form av montörer och viss arbetsstökighet som kan förekomma.
Kommunen står nu i startgroparna gällande ett fönsterprojekt i Centrumhuset. Fönsterbyte på entréplan sker preliminärt mellan 20 november tills 26 januari (vecka 47 – vecka 4), därefter förflyttas arbetet till plan 2 som vi beräknar arbeta med under fram tills mitten av mars.
Du som besökare
Som besökare kan du beröras vid besök till någon av Centrumhusets olika verksamheter. Ni kan mötas av montörer när de hämtar och lämnar material, när de byter fönster i offentliga lokaler och stökiga ljud som kan uppstå vid monteringen. En container kommer även att placeras vid Solbacken och vid uteplatsen placeras fönster i väntan på montage.
Vi hoppas att ni som besökare blir berörda så lite som möjligt under denna period.
Om projektet
Projektet innebär att cirka 360 fönster kommer att bytas och det avser den äldre delen av fastigheten som är byggd 1974.
Uppstart med ett provmontage sker i mitten av denna vecka, sex fönster kommer att bytas där Läkare utan gränsers samt Arbetsförmedlingens hade sina lokaler.
Entreprenören som utför arbetet heter Glasomera AB. Arbetslaget består av två-tre montörer och de beräknar byta runt 30 fönster i veckan.
Vecka | Verksamhet |
|---|---|
Vecka 47-48 | Lindblads Begravningsbyrå och ett kontor där Götene Kommun är hyresgäst |
Vecka 48-51 | Närhälsan vårdcentral |
Vecka 51-1 | Folktandvården |
Vecka 1 | Skallmeja Telemarketing |
Vecka 2 | Apoteket |
Vecka | Grottankorridoren |
Vid tillfälle | Biblioteket |
Frågor
Frågor besvaras av Fastighetsförvaltare Åsa Hammargård.
Telefon: 0511-322 20
Mail: asa.hammargard@skara.se
Dela
Var det här informationen du sökte?
Tack för att du hjälper oss!
